• MCA English
  • MCA Francais
  • MCA German
  • MCA Dutch
  • MCA Italia
  • MCA Hrvatska
  • MCA Bulgaria
  • MCA Hungary
  • MCA Moldova
  • MCA Romania
  • Despre MCA
  • Noutati
  • Contact
  • Contact
  • +40742062207
  • Promotii
    • Usi de garaj sectionale
    • Usi industriale sectionale
    • Rulouri exterioare
    • Grilaje metalice
  • Produse
    • Usi de garaj sectionale
    • Usi de garaj tip rulou
    • Usi industriale sectionale
    • Rulouri exterioare
    • Plase de protectie impotriva tantarilor
    • Tehnica de incarcare
    • Usi antifoc si multifunctionale
    • Automatizari porti si bariere
    • Grilaje metalice
  • Preturi
    • Usi de garaj sectionale
    • Usi de garaj rulou
    • Usi industriale sectionale
    • Usi rezistente la foc
    • Usi metalice tehnice
    • Rulouri exterioare
    • Automatizari porti si bariere
    • Grilaje metalice
  • Info utile
    • Usi de garaj
    • Usi industriale
    • Rulouri exterioare
    • Grilaje metalice
    • Automatizari
  • Showroom
    • Tur virtual al showroom-ului MCA
    • Stand MCA Ambient Expo 2012
    • Stand MCA Ambient Expo 2013
    • Stand MCA Ambient Expo 2014
    • Prezentari video rulouri
    • Prezentari video usi de garaj
    • Prezentari video usi industriale
    • Prezentari video automatizari de porti
    • Lista canalelor Youtube MCA
  • B2B
    • Academia MCA
    • Pentru Distribuitori
    • Pentru Arhitecti
    • Pentru Constructori
    • Intra in Echipa MCA
  • Service
  • Contact
    • Cine suntem
    • MCA Service
    • Distribuitori interni
    • Calitatea MCA
    • Noutati
    • Aparitii in presa
    • Echipa MCA
    • Cariere
    • Contact
  • Home
  • Produse
  • Usi industriale sectionale
  • Informatii utile
  • 2022
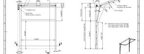
Cote necesare pentru instalarea usilor MCA

Actualizare material tehnic "Cote necesare pentru instalarea usilor MCA"

2022-09-14

O noua versiune a materialui tehnic "Cote necesare pentru instalarea usilor MCA" este acum disponibila.

Materialul este disponibil aici.

Calculati acum pretul usii industriale!

Configurator online de produse! Devizul se calculeaza instant!

Configurator usa

  • Promotii usi industriale
  • Calculator de preturi
  • Configurator rapid usi industriale
  • Configurator complex usi industriale
  • Calculator de preturi pentru arcuri de torsiune pentru usi industriale
  • Usi industriale sectionale MCA
    • Usi industriale standard
    • Usi industriale SLR
    • Usi industriale LHF
    • Usi industriale LHR-RM
    • Usi industriale FTR
    • Usi industriale HL
    • Usi industriale HL+FTR
    • Usi industriale FVL
  • Tipuri de panouri usi industriale
  • Izolare termica usi industriale
  • Accesorii usi industriale
  • Ferestre si panouri vitrate
  • Usa pietonala integrata
  • Actionari usi industriale
  • Sisteme de siguranta usi
    industriale
  • Sisteme de automatizare
    SOMMER
  • Informatii utile
  • Cote instalare usi sectionale
  • Biblioteca obiecte 2D si 3D - BIM
  • Galerie foto usi industriale
  • Galerie video usi industriale
  • Conditii de garantie
  • Service si depanare
    • Calculator de preturi arcuri de torsiune

Calculator preturi usi industriale

Calculeaza pret usa de garaj

Calculator preturi arcuri de torsiune

Calculeaza pret usa de garaj

Brosura usi sectionale

descarca brosura usi de garaj

Brosura automatizari industriale SOMMER

descarca brosura usi de garaj

Bilbioteca 3D BIM

Biblioteca BIM
Contact MCA Grup

Despre MCA

MCA este producator specializat in productia de uși secționale și rulouri pentru ferestre, având o fabrică de peste 7000 mp și o experiență de peste 28 de ani în domeniu. La baza evolutiei MCA sta o profunda dorinta de perfectionare continua, care a facut posibila dezvoltarea de solutii profesioniste pentru inchiderea spatiilor. ...citeste continuarea »...

Site-uri MCA

www.mcagrup.ro
www.rulouri.biz
www.grilaje-mca.com
www.automatizari-sommer.ro

Contact

  • Fabrica/Head-office/Distributie
  • Adresa: Popeşti-Leordeni, Şos. Olteniţei nr. 223, județul Ilfov, Cod postal: 077160, Romania - link harta

  • Telefon: +40742062207

  • Email: office@mcagrup.ro

Important!
In perioada 24 decembrie - 7 ianuarie 2026, fabrica si toate punctele de lucru MCA isi vor opri activitatea pentru concediul de iarna. Va rugam sa confirmati termenele de livrare cu reprezentantii departamentului Vanzari MCA.

© Copyright MCA GRUP 2025 . All Rights Reserved.

MILCA SRL - CUI: RO10169504, NR Reg. Com.: J52/178/1997

ANPC | Setări cookies